Ravenna/Shepard/Broadway/Richmond Intersection Improvement
July 16, 2025 - Update
Construction Set to Begin July 28 on Ravenna/Shepard/Broadway/Richmond Intersection Improvements
Construction will begin on the long-anticipated Ravenna/Shepard/Broadway/Richmond intersection improvement project on Monday, July 28, 2025. Residents and commuters can expect to see construction signage, equipment deliveries, and crews mobilizing as early as next week, in preparation for the start of work.
Please note: While lane closures will not begin until Monday, July 28, activity in the area will increase in the days leading up to that date.
At least one lane of traffic in each direction will remain open throughout construction. Access to homes, businesses, and nearby streets will also be maintained.
Project Description
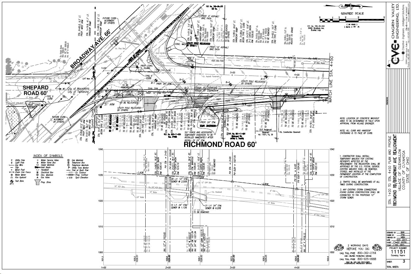
The City of Twinsburg, in partnership with Glenwillow, Macedonia, and Oakwood Village, is planning improvements to the Ravenna/Shepard/Broadway/Richmond Intersection. This federally funded project will improve safety and functionality of the intersection.
The work included in this project:
- Adding right-turn lanes on Ravenna Road and Broadway Avenue
- Adding a left turn lane on Shepard Road.
- Curb, sidewalk, signal, limited driveway restoration, and drainage improvement
- Acquisition of minor new permanent and/or temporary rights-of-way as necessary to accommodate the proposed work

